HALA PRODUKCYJNO-MAGAZYNOWA - 2.385 m2
Boryszew Nieruchomości oferuje na wynajem halę magazynowo - produkcyjną wraz z zapleczem socjalno-biurowym o pow. użytkowej 2.385,45 m2 zlokalizowaną na terenie Parku Przemysłowego ELANA.
Czynsz - 29.999,00 zł netto/m-c.
Teren w Studium Uwarunkowań i Kierunków Zagospodarowania Przestrzennego znajduje się w granicach obszaru produkcyjno-usługowego, który umożliwia lokalizację przedsięwzięć mogących znacząco oddziaływać na środowisko, w tym gospodarkę odpadami.
Specyfikacja techniczna:
- wolnostojący;
- jednokondygnacyjny;
- niepodpiwniczony;
- częściowo murowany, częściowo z prefabrykatów;
- stropodach żelbetowy dwuspadowy;
- powierzchnia zabudowy – 2.595 m2;
- powierzchnia użytkowa – 2.385,45 m2;
- wysokość 6 - 6,8 m (część wysoka) oraz 3,6 - 4,4 m (część niska);
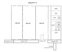
- 10 bram wjazdowych - największe o wymiarach 5 x 4,5 m oraz 4,2 x 3,6 m;
- dostęp z poziomu '0' oraz rampy załadunkowej;
- możliwość częściowego wjazdu auta ciężarowego i rozładunku w hali;
- suwnica o udźwigu 3,2 t;
- posadzka betonowa, pylna o udźwigu 5 t/m2.
Wyposażona w:
- instalację elektryczną;
- instalację wody hydrantowej;
- kanalizację deszczową;
- centralne ogrzewanie;
- wentylację grawitacyjną;
- instalację teletechniczną;
- instalację odgromową.
Istnieje możliwość wykonania adaptacji pod potrzeby Klienta, bądź wynajmu połowy hali - do uzgodnienia.
Wysokość czynszu dotyczy wynajęcia całości budynku.
Cena za wynajem nie obejmuje potencjalnych adaptacji.
Kontakt: Kamil Niedbalski +48728525049, kamil.niedbalski@elana.pl


